Rénovation appartement type 2 pièces + zone commune
Rénovation appartement type 2 pièces + zone commune
Modification des espaces de vie
07 Rue Edouard Robert 75012 Paris
Description :
Programme :
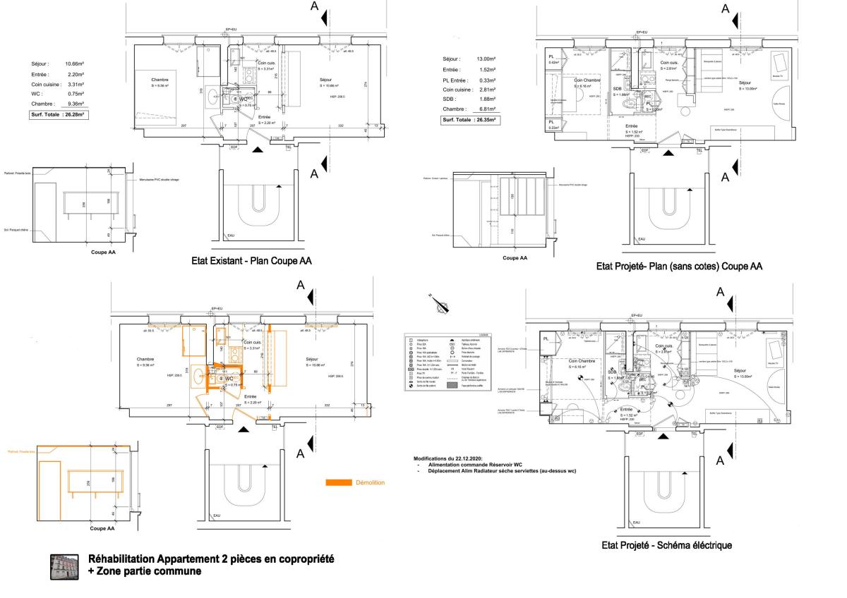
Espace de vie d’un appartement de petite surface, 26.28m² en octobre 2020.
Objectif de conception :
- Agencement des espaces de vie habitable associant activités professionnelles
Projet :
Création :
- D’uneSalle d’eau indépendante.
- D’un espace bureau pour une activité professionnelle ponctuelle.
- D’une entrée aménagée.
- D’unechambre bureau avec la composition d’un lit escamotable.
- D’une surface coin cuisine avec table et rangement intégré au séjour.
- De ventiler l’appartement avec l’installation d’une VMC.
- D’aménager le coin cuisine (penderie, hotte avec meuble évier, rangement, et table) avec placard technique intégrant BEC et chasse d’eau WC.
- De renforcer l’isolation acoustique du plafond et améliorer l’isolation thermique.
- D’une nouvelle installation plomberie en prévision du changement de la colonne en plomb de l’immeuble
- D’une nouvelle Installation électrique
