ZAC DU CAMPUS - VILLEJUIF
Aménagement Urbain ZAC du CAMPUS
94800 Villejuif - Val-de-Marne
Programme: - ENSAPLV - 2016
Etudes d’urbanisme :
Avec l’arrivée de la Gare du Grand Paris de la ligne 15 Sud
Recomposition urbaine :
- Du secteur de l’hôpital Gustave Roussy avec une ligne TRAM
- De la raccroche du centre-ville à travers :
- L’aménagement de la rue Jules Joffrin,
- La création du passage commercial,
- De l’aménagement des différents accès du Parc départemental des Hautes-Bruyères
- Du secteur des centres d’activités et de recherches de la rue Marcel Paul avec le réaménagement du quartier Sup’ Biotech et la liaison de la rue Marcel Grosmenil et de la rue Guy Môquet.
- Du secteur de l’entrée du centre Hospitalier Paul Giraud (départementale D 148),
Projet :
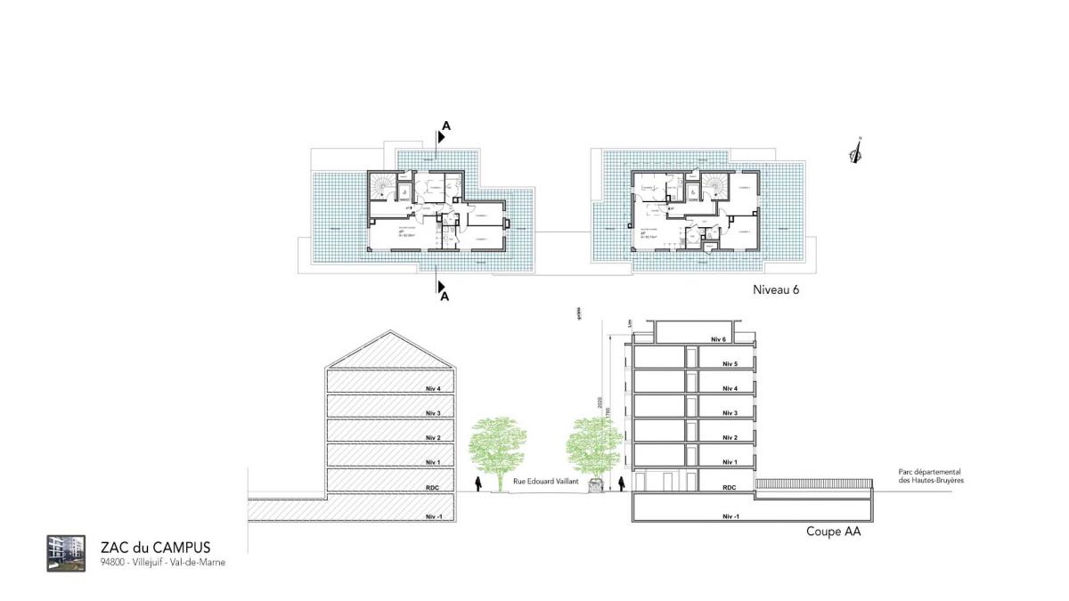
Immeuble de logements sur parc des Hautes-Bruyères :
- Niveau -1 : Stationnement
- Rez-de-Chaussée : Accès, Logements du 2 au 4 pièces, Locaux communs avec jardins privatifs
- Niveaux 1 à 6 : Logements du ST au 4 Pièces avec grande terrasse - niveau 6
Le projet d’une gare du Grand Paris sur la commune de Villejuif est à l’origine de l’étude de l’aménagement de ce secteur.
A l’heure actuelle, un parc abrite les enceintes d’anciennes fortifications, ainsi que des bâtiments vétustes en cours d’expropriation. L’hôpital Gustave Roussy, ainsi qu’un centre de sport jouxtent le campus.
La nouvelle gare devra être connectée facilement aux communes environnantes et au centre ville. La zone entière sera réaménagée pour permettre la construction de nouveaux logements ainsi que d’un centre de recherches universitaires et d’un ensemble d’activités tertiaires.
L’étude urbaine a pris en compte l’ensemble de la commune, par la création de liaisons avec les différents quartiers, et les différentes villes environnantes.
D’anciens bâtiments industriels sont recomposés en lofts, autour d’une galerie piétonne, des commerces sont créés, ainsi que des établissements publics (Écoles, Crèches, Bibliothèques…)
Le secteur proche de la gare est densifié : Bureaux, Logements, Université, Centre de recherche.
